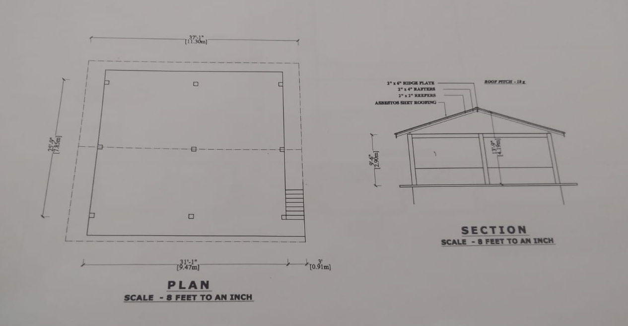
DABAL Begins Construction of the First Floor at Neth Savan Sarana School – Panchaliya, Galle
Deaf and Blind Aid Lanka (DABAL) is honoured to announce the commencement of a major development project at Neth Savan Sarana School in Panchaliya, Galle—the construction of the school’s first floor, a vital expansion that will uplift the learning environment for children with hearing and visual impairments.
A Project Built on Transparency, Care, and Collaboration
Over recent months, our team has worked diligently to ensure this project is grounded in integrity and proper governance. We have:
• Obtained multiple quotations from qualified contractors
• Followed recommendations and pricing guidelines provided by the Sri Lankan government
• Consulted with local representatives and community leaders
• Received approval and guidance from the school’s board and management
This careful process reflects DABAL’s commitment to responsible stewardship and long‑term sustainability in every project we undertake.
Why This Expansion Matters
Neth Savan Sarana School plays a crucial role in supporting children with disabilities in the Galle District. The new first floor will:
• Provide additional classroom space
• Improve accessibility and comfort
• Support the school’s growing student population
• Strengthen the educational foundation for some of the most vulnerable children in the region
This is more than a construction project—it is an investment in dignity, opportunity, and the future of every child who learns here.
A Heartfelt Thank You to Our UK Members and Donors
We extend our deepest gratitude to our UK members and our frequent donors.
Because of your generosity, dedication, and trust, we are able to support projects like this. Every penny you give goes directly to the end user.
Your kindness travels across oceans and transforms lives in Sri Lanka. This project stands as a testament to your compassion.
Moving Forward
With all approvals and preparations complete, DABAL is now officially beginning construction. We will continue to work closely with local authorities, school leadership, and community partners to ensure smooth progress.
Regular updates, photos, and reports will be shared as the project advances, keeping our supporters fully informed and connected to the impact they are making.
We will share photos and updates once the construction of the first floor is completed, so our supporters can see the impact of their generosity come to life.
